型号SLS60H

2021-03-16

型号SLS6H

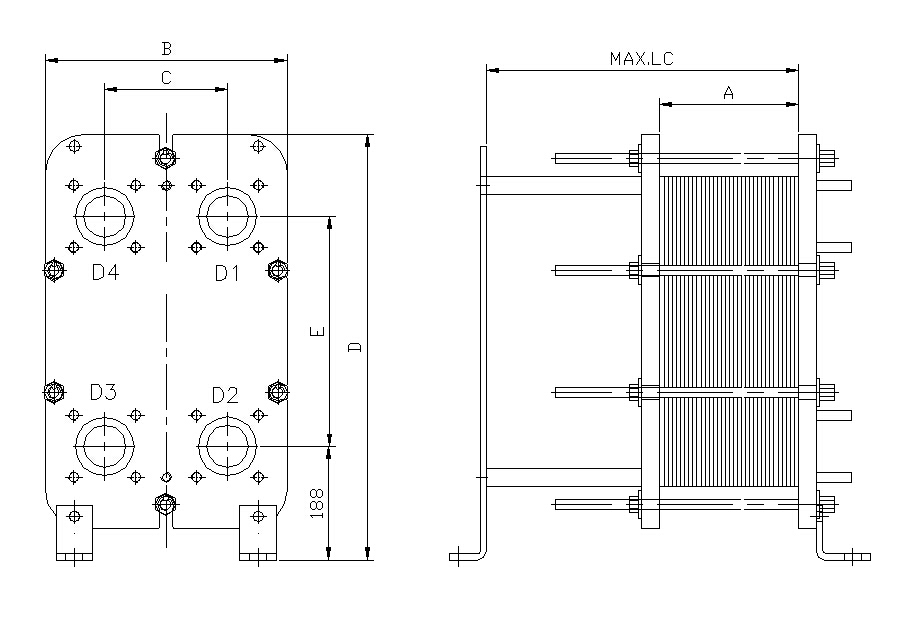
型号

A(mm)

B(mm)

C(mm)

D(mm)

E(mm)

SLS60H

N(4.0+X)

400

203

704

380

 

地段中心至地面高度(mm)

188

MAX.LC(mm)

1200

接口通径(mm)

65

最大流量(m3/h)

50

设计压力(Mpa)

1.6

最大片数

147


联系我们

电话:15651967001
网址:www.jysuli.com
地址:无锡市江阴徐霞客镇宏岐村陶家村133-1号
客服中心
工作时间

周一至周日

8:00 - 18:00

点击这里给我发消息 销售客服


请直接QQ联系!
展开客服